机场飞行区保障钢筋网围界设计规范
发布日期:2025-07-17 总浏览:

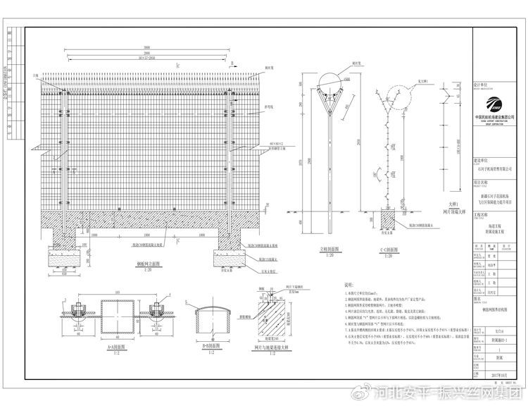
一、机场飞行区保障钢筋网围界设计规范
1.本图钢筋网围界尺寸单位均以mm计。
2.钢筋网围界除基础、地梁外,其余构件均为生产厂家定型产品。
3.钢筋网围界采用喷塑钢筋网片,立柱亦喷塑。
4.钢筋网围界网片涂层应均匀光滑、连续、无孔隙、裂缝、脱皮及其它缺陷。
5.钢筋网围界项部“V”型网片以卡环与下部网片相连,以防盗螺栓组与立柱相连。
6.钢筋网围界刺丝笼与钢筋网顶部“V”型网片以卡环相连。
7.钢筋网围界土基及开槽两侧的回填土要求:土基压实度不小于93%,回填土压实度不小于93% (重型击实标准) 。
8.钢筋网围界石灰土垫层实度不小于95% (重型击实标准),压实度应不小于96% (重型击实标准),易溶盐含量不大于0.3%;石灰土含灰量为12%,压实度不小于95%。
二、机场飞行区保障钢筋网围界材料说明
1、立柱,60*60*2mm矩形管;
2、网格,50*100mm;
3、网丝,Φ5.0mm;
4、刀刺网,Φ500mm;
5、刺绳,12#刺铁丝;
6、折弯线,4道。

标签:
上一篇:干渠渠道围栏施工方案及详细参数下一篇:桥梁防落物网生产技术规范
相关资讯
- 2025-09-16出口飞机场高密金属网墙专业生产厂家
- 2025-09-16出口监狱看守所金属网墙专业生产厂家
- 2025-09-16出口热镀锌金属网墙专业生产厂家
- 2025-09-16出口国外光伏区发电站热镀锌围栏专业生产厂家
- 2025-09-16出口热镀锌围墙护栏网专业生产厂家
- 2025-09-16出口水源地保护区热镀锌涂塑双涂层护栏网专业生产厂家
- 2025-09-16出口水源地保护区钢板网护栏网专业生产厂家
- 2025-09-03新疆博尔塔拉蒙古自治州金属钢板网护栏网生产厂家
- 2025-09-03新疆博湖县景区热镀锌金属隔离栅防护网生产厂家
- 2025-09-03张家口草原治理项目热浸塑框架护栏网生产厂家
推荐产品
P
秉德产品中心
秉德产品中心
r o d u c t s
联系秉德
安平县秉德丝网制品有限公司
手机/微信:136 3328 3121
公司电话:0318-8090660
公司传真:0318-8090660
公司地址:河北安平县丝网工业园东区






