焊接网隔离栅生产制造厂家

一、焊接网隔离栅设计原则
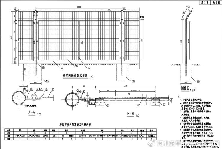
1、本图高速公路护栏网尺寸以毫米为单位。
2、焊接网隔离栅除网片钢丝为一般用途低碳钢丝外,所有钢材均为Q235钢,其力学性能应符合GB700-2006要求。
3、焊接网隔离栅施焊前,要求各单体平直并去除毛刺及锈迹。
4、焊接网隔离栅焊接部位要求过渡光滑,无夹渣,无虚焊,无气孔等缺陷。
5、焊接网隔离栅构件焊接成型后的整体曲翘度横向不得大于7mm,纵向不得大于5mm。
6、焊接网隔离栅连接板与立柱及网片边框在组焊时,其对称中心的偏斜不得超过1mm。
7、焊接网隔离栅所有钢构件均应作防腐处理,详见设计说明。
8、焊接网隔离栅网片钢丝采用镀锌钢丝,其力学性能须符合YB/T 5294- 2009中对镀锌钢丝的相关要求,抗拉强度为295MPa~ 540MPa。
9、焊接网隔离栅斜撑用Q235钢做成,斜撑与立柱的焊接部位要求过渡光滑,无夹渣、无虚焊、无气孔。斜撑应作热浸锌防腐处理,先镀锌再镀塑,镀层厚度详见设计说明,镀塑颜色与立柱一致。焊接网隔离栅每三跨设置一斜撑。
二、焊接网隔离栅安装原则
1、焊接网隔离栅设在公路用地界与边沟之间,距用地界线30cm。
2、焊接网隔离栅遇跨径不大于3m的涵洞直接跨越,但应根据现场具体情况采用异形网片将涵洞围封,以免人畜从涵洞底部进入高速公路;遇桥梁、通道及跨径大于3m的涵洞等构造物时,采用端头围封。
3、焊接网隔离栅遇小的沟渠和流量小的涵洞,可直接跨过,但在跨跃处需设置异形网片;否则,做端头围封的拐角处理。
4、焊接网隔离栅在地形起伏地段,按阶梯形设置。
5、焊接网隔离栅在地势较陡的爬坡路段焊接网隔离栅需进行特殊处理,设置异形网片,避免人畜从两片焊接网隔离栅空隙中进入高速公路。
三、焊接网隔离栅参数要求
1、立柱,Φ48*3mm;
2、边框,20*30*2mm;
3、竖管,20*30*2mm;
4、连接板,40*50*4mm;
5、网格,75*150mm;
6、网丝,4.0mm。

标签:
相关资讯
- 2025-09-16出口飞机场高密金属网墙专业生产厂家
- 2025-09-16出口监狱看守所金属网墙专业生产厂家
- 2025-09-16出口热镀锌金属网墙专业生产厂家
- 2025-09-16出口国外光伏区发电站热镀锌围栏专业生产厂家
- 2025-09-16出口热镀锌围墙护栏网专业生产厂家
- 2025-09-16出口水源地保护区热镀锌涂塑双涂层护栏网专业生产厂家
- 2025-09-16出口水源地保护区钢板网护栏网专业生产厂家
- 2025-09-03新疆博尔塔拉蒙古自治州金属钢板网护栏网生产厂家
- 2025-09-03新疆博湖县景区热镀锌金属隔离栅防护网生产厂家
- 2025-09-03张家口草原治理项目热浸塑框架护栏网生产厂家
推荐产品
秉德产品中心
r o d u c t s
联系秉德
安平县秉德丝网制品有限公司
手机/微信:136 3328 3121
公司电话:0318-8090660
公司传真:0318-8090660
公司地址:河北安平县丝网工业园东区






