双圈护栏网一般设计标准
发布日期:2025-07-17 总浏览:


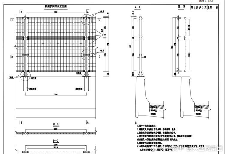
一、双圈护栏网设计说明
1、本图双圈护栏网尺寸均以毫米计。
2、双圈护栏网钢筋交叉点均施以自动电焊,不得浮焊、漏焊。
3、双圈护栏网涂装采用先热浸镀锌后喷塑,喷塑颜色为白色。
4、图中双圈护栏网的网片型式及双圈护栏网高度仅为示意,实际施工可作调整,但应满足《公路交通安全设施设计规范》相关规定。
5、双圈护栏网应做防雷接地处理。
6、本图为双圈护栏网构造参考图,当双圈护栏网型式、高度、立柱型式等发生变化时,应根据实际情况提走恶化那个双圈护栏网与桥梁护栏的连接形式。
二、双圈护栏网材料说明
1、立柱,Φ48*3.0mm钢管;
2、网格,50*100mm;
3、横丝,4.5mm;
4、竖丝,3.5mm;
5、法兰盘,200*200*10mm;
6、加劲板,150*70*10mm。

标签:
上一篇:机场飞行区刺铁丝围界设计要求下一篇:高速防落物网设计标准及报价价格
相关资讯
- 2025-09-16出口飞机场高密金属网墙专业生产厂家
- 2025-09-16出口监狱看守所金属网墙专业生产厂家
- 2025-09-16出口热镀锌金属网墙专业生产厂家
- 2025-09-16出口国外光伏区发电站热镀锌围栏专业生产厂家
- 2025-09-16出口热镀锌围墙护栏网专业生产厂家
- 2025-09-16出口水源地保护区热镀锌涂塑双涂层护栏网专业生产厂家
- 2025-09-16出口水源地保护区钢板网护栏网专业生产厂家
- 2025-09-03新疆博尔塔拉蒙古自治州金属钢板网护栏网生产厂家
- 2025-09-03新疆博湖县景区热镀锌金属隔离栅防护网生产厂家
- 2025-09-03张家口草原治理项目热浸塑框架护栏网生产厂家
推荐产品
P
秉德产品中心
秉德产品中心
r o d u c t s
联系秉德
安平县秉德丝网制品有限公司
手机/微信:136 3328 3121
公司电话:0318-8090660
公司传真:0318-8090660
公司地址:河北安平县丝网工业园东区






