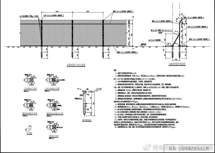
金属网围栏生产规范

1、本图金属网围栏尺寸单位除注明外均以mm计。
2、金属网围栏类型为镀锌钢丝网,丝径5.0mm ,网孔为80mmx80mm.安装要求应按照《公路交通安全设施设计规范》JTGD81- 2017和《公路交通安全设施施工技术规范》JTG F71-2018执行。
3、金属网围栏立柱与框架横钢管要求连接牢固稳定,不易损坏,整体连接平顺。
4、金属网围栏镀锌钢丝网安装要求网面平整,无明显凹凸现象,框架与网片及立柱应连接牢固,可靠,预防被拆除。立柱、边框、网片及斜撑均需达到Q235钢的要求;每隔15m在立柱上设40x40一斜撑,斜撑与立柱应连接可靠。
5、金属网围栏钢螺旋桩材质: Q235B ;焊缝要求平整光滑;焊渣清理干净。
6、金属网围栏钢螺旋桩的加工、制作、 安装应由具备相应资质的专业公司承担。
7、金属网围栏钢螺旋桩施工前应检查出厂合格证及各项检验或试验报告资料,检验构件外观是否符合标准。
8、金属网围栏钢螺旋桩采用热浸镀锌涂层,热浸镀锌需满足《金属覆盖层钢铁制件热浸镀锌层技术要求及试验方法》(GB/T13912)的相关要求,内外表面镀锌厚度不小于85μm。
9、镀锌厚度检测:镀锌层厚度按照《金属覆盖层钢铁制件热浸镀锌层技术要求及试验方法》规定的方法进行检测。
10、金属网围栏钢管螺旋桩直径60mm ,厚3.5mm ,总长1000mm ,入土深度960mm ,外露部分长度为40mm ,钢管螺纹不小于500mm。
11、金属网围栏施工时须采用有效措施防止热浸镀锌层被磨损,以保证钢螺旋桩在设计使用年限内正常使用。
12、金属网围栏施工以及验收应满足《建筑防腐蚀工程施工及验收规范》(GB50212- 2002) 。
13、金属网围栏施工完成后,应详细检查施工过程中是否有切口擦伤,如有,还应进行现场涂刷或喷涂防腐。
14、金属网围栏冬季施工或在特殊气候及其它条件施工时,应按有关规范、规定及标准执行。
15、金属网围栏试桩要求:按场区均匀布置的原则布置20根桩,对承载力和热浸镀锌涂层先后进行检测。要求单桩抗拔承载力特征值2kN,抗压承载力特征值3kN ,单桩水平承载力特征值1.4kN ;并将已完成承载力试验的钢螺旋桩基础挖出,检测该基础热浸镀锌涂层厚度,镀锌厚度不应小于65μm。所有试桩资料及现场照片均应整理后提供业主和设计单位。
16、金属网围栏的立柱、边框、斜撑、网片及所有连接件表面除锈后均采用热镀锌处理,镀锌厚度不小于65μm。

标签:
相关资讯
- 2025-09-16出口飞机场高密金属网墙专业生产厂家
- 2025-09-16出口监狱看守所金属网墙专业生产厂家
- 2025-09-16出口热镀锌金属网墙专业生产厂家
- 2025-09-16出口国外光伏区发电站热镀锌围栏专业生产厂家
- 2025-09-16出口热镀锌围墙护栏网专业生产厂家
- 2025-09-16出口水源地保护区热镀锌涂塑双涂层护栏网专业生产厂家
- 2025-09-16出口水源地保护区钢板网护栏网专业生产厂家
- 2025-09-03新疆博尔塔拉蒙古自治州金属钢板网护栏网生产厂家
- 2025-09-03新疆博湖县景区热镀锌金属隔离栅防护网生产厂家
- 2025-09-03张家口草原治理项目热浸塑框架护栏网生产厂家
推荐产品
秉德产品中心
r o d u c t s
联系秉德
安平县秉德丝网制品有限公司
手机/微信:136 3328 3121
公司电话:0318-8090660
公司传真:0318-8090660
公司地址:河北安平县丝网工业园东区






